Chuyên nhận gia công sản xuất các loại quạt hút ly tâm Inox 304 và quạt ly tâm Composite chống ăn mòn theo yêu cầu của quý khách hàng:
- Các dòng quạt ly tâm công nghiệp, quạt ly tâm composite, quạt ly tâm gián tiếp, quạt ly tâm trung áp, cao áp, thấp áp, siêu cao áp, lưu lượng ... tất cả làm bằng Inox 304 không rỉ sét. Hiệu suất cao, lưu lượng gió lớn phù hợp với mọi không gian
- Chuyên sử dụng trong môi trường: Hoá chất ăn mòn, Axit, vùng nước biển mặn..
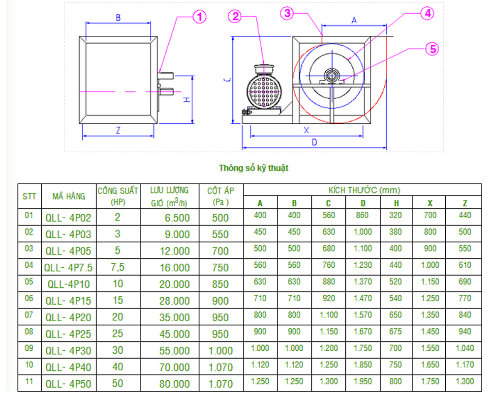
- Quý khách hàng vui lòng chọn Model và thông số kỷ thuật phù hợp để chúng tôi cho giá tốt nhất


Gọi ngay 0942.000.58 để tư vấn đặt hàng theo đúng yêu cầu quý khách hàng/